TC1C

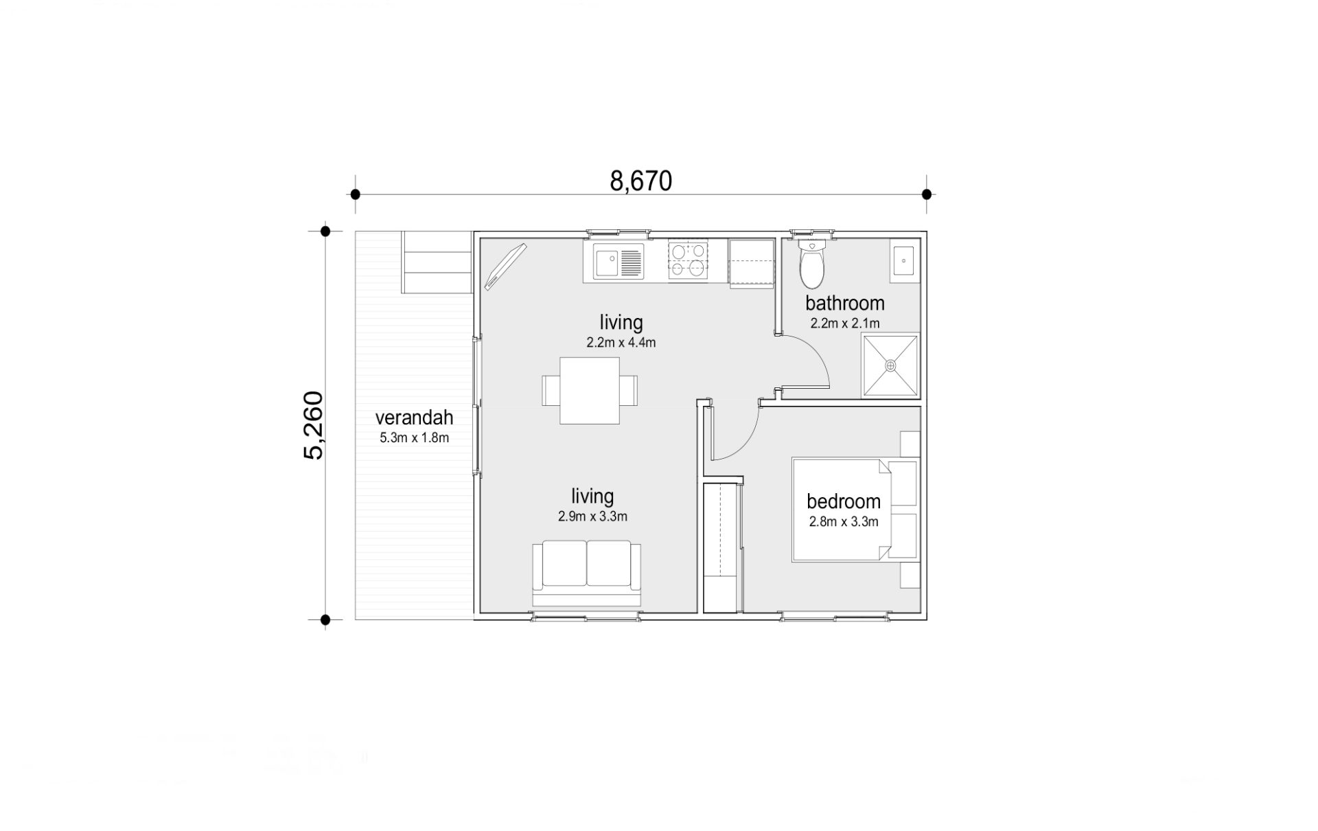
The generous layout of this spacious, one-bedroom cabin makes it perfect for a more extended stay for two people. It comprises a large living area, kitchen, separate bathroom, and front verandah.

  • 1
  • 1

Note: Prices include GST, verandahs, delivery and installation to your postcode area. Excluded from these prices are connection of services, council fees and carport. Extra charges may apply if site access is difficult. Please contact us to discuss a customised fixed price contract that suits your needs.

Contact Us

Are you looking for top quality cabins for your tourism business? We’d love to help. Fill out the form, and we’ll be in touch.

Discover the Uniplan Advantage™

Explore Similar Cabins

From sleek, single-bedroom units to more spacious designs, there’s a Uniplan cabin to suit every site.

AG_AG

This design can sleep up to 14 people, with a spacious student dorm room, three bathrooms, a communal dining and living area, and a staff bedroom with internal and external access. The cabin boasts a large front verandah and accessibility options, providing room for everyone to feel at home.

AG_AF

Experience space-saving design with queen-sized rooms, storage facilities, and private verandahs. The floor plan has been configured for short stays and is perfect for overnight accommodation.

AG_AE

This luxurious cabin is perfect for longer stays and provides an elegant backdrop for a couples’ holiday. The cabin includes a large kitchen area with cooking facilities, a grand bedroom and a spacious ensuite. The bedroom opens to a private verandah that can house a spa or other outdoor attractions.

AG_AD

This spacious open-plan studio cabin features a king bed, which is the statement piece, built-in robes, a large sitting area, a separate bathroom and vanity area, and a spacious front verandah.

AG_AC

An elegant one-bedroom cabin is perfect for a luxurious getaway. A king-sized bedroom with a built-in robe and a large bathroom with space for a bathtub provide guests with an extra wow factor. The stunning front verandah is ideal for enjoying a cheese platter in the evening.

AG_AB

This compact one-bedroom cabin features a generous queen-size bedroom with a built-in robe and desk, a separate living area, a kitchenette, ensuite and front verandah — great for a couple’s getaway.

AG_AA

Perfect for long stays for couples or small families, this cabin offers a generous queen-size bedroom, a large ensuite and a built-in laundry area. There’s room to spread out with an open living and dining area, a full-size kitchen and a study that can be transformed into a second room.

AG_FD

*Prices subject to change based on material cost fluctuations.